綾瀬市早川 の分譲住宅一覧|東京・神奈川の不動産のことならエムイーPLUS町田

TOPページ >
物件検索 >
分譲住宅特集一覧 >
綾瀬市早川 の分譲住宅特集一覧
2件中1〜2件を表示
  • 1
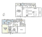
新築一戸建て
価格 2,780万円 
所在地 綾瀬市早川
交通 小田急小田原線 海老名駅 バス14分停歩4分
建物面積 99.63m2 土地面積 94.52m2

新築一戸建て
価格 2,980万円 
所在地 綾瀬市早川
交通 小田急小田原線 海老名駅 バス14分停歩4分
建物面積 93.95m2 土地面積 94.88m2

2件中1〜2件を表示
  • 1