伊勢原市沼目2丁目の分譲住宅一覧|東京・神奈川の不動産のことならエムイーPLUS町田
0120-008-442
定休日:水曜 営業時間:9:00~
トップ
買いたい
物件検索
東京都町田市特集
神奈川県相模原市特集
委任物件特集
売りたい
当社の売却について
不動産売却査定
売却の流れ
知りたい
不動産コラム
ローンシミュレーション
住宅ローン相談
会員登録・無料サービス
お客様の声
WEBパンフレット
会社概要
会社案内
アドバイザー紹介
エムイーPLUS町田の強み
来店予約
よくある質問
お問い合わせ
会員登録
マイページ
TOPページ
>
物件検索
>
分譲住宅特集一覧
>
伊勢原市沼目2丁目の分譲住宅特集一覧
2
件中
1〜2
件を表示
1
check
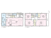
新築一戸建て|伊勢原市沼目2丁目分譲住宅
新築一戸建て
価格
2,980万円
所在地
伊勢原市沼目2丁目
交通
小田急小田原線 伊勢原駅 徒歩16分
建物面積
95.58m
2
土地面積
103.14m
2
check
新築一戸建て|伊勢原市沼目2丁目分譲住宅
新築一戸建て
価格
3,280万円
所在地
伊勢原市沼目2丁目
交通
小田急小田原線 伊勢原駅 徒歩16分
建物面積
90.72m
2
土地面積
108.52m
2
2
件中
1〜2
件を表示
1
マイページメニュー
ようこそ!
【只今ログイン中です】
マイページトップ
お客様の検討リスト
MY条件登録
プロフィール設定
使い方ガイド
ログアウト
物件を買いたい
ESTATE FOR BUY
駅・沿線から探す
学区から探す
詳細条件から探す
種別で探す
新築一戸建て
中古一戸建て
中古マンション
土地
価格から探す
2,000万円台
3,000万円台
4,000万円台
5,000万円台
こだわり条件から探す
新着物件
値下げ物件
3LDK以上
駅徒歩15分以内
駐車場2台
カウンター
キッチン
ペット相談可マンション
フリーワードから探す
不動産を売りたい
ESTATE FOR SALE
不動産売却査定
当社の売却
コンテンツ一覧
CONTENTS
エムイーPLUS町田の強み
会員登録・無料サービス
ファイナンシャルプラン相談
ローンシミュレーション
住宅ローン相談
よくある質問
WEBパンフレット
当社について
COMPANY
0120-008-442
住所:〒194-0023
東京都町田市旭町1丁目4-1
定休日:水曜 営業時間:9:00~
会社概要・アクセス
アドバイザー紹介
物件検索
お気に入り
閲覧履歴
来店予約
検索履歴
ログイン
マイページ
物件を探す
会員登録
マイページ