| 価格 | 4,490万円値下がり ![]() |
||||
|---|---|---|---|---|---|
| 所在地 | 神奈川県平塚市平塚3丁目
この地域周辺の物件を見る |
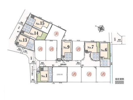
土地面積 | 139.65m² (42.24坪) | 建物面積 | 105.15u |
| 築年月 | 2025年9月築 | 間取り | 4LDK (-) | ||
| 交通 |
JR東海道本線 平塚 徒歩18分
JR東海道本線 大磯 徒歩33分 |
||||
-
電話をかける(携帯・PHS可)
0120-008-442
「ホームページを見た」とお伝え下さい。
お問い合わせ番号をお伝えください
RHS-980913862
| 特徴 |
|
|---|---|
| セールスコメント |
| 採光面 | - | 構造/階数 | 木造/地上2階建 |
|---|---|---|---|
| 建ぺい率 | 60(%) | 容積率 | 200(%) |
| 駐車場 | 有 | 現況/引渡し | 空家/即時 |
| 土地権利 | 所有権 | 私道負担面積 | - |
| 接道状況 | 接道: 北 公道 道路幅: 4.6m | 用途地域 |
第一種住居地域
|
| セットバック | なし | 法令上の制限 | 第二種高度地区(最高上限度15m)景観法 国土利用計画法 平塚市景観条例 平塚市まちづくり条例 |
| 地目 | 宅地 | 地勢 | |
| 建築確認番号 | 第23UDI1S建07104−2号 | 都市計画 | 市街化区域 |
| 取引態様 | 仲介 | ||
| 情報更新日 | 2026年05月02日 | 次回更新日 | 2026年05月16日 |
| 小学校区 | () |
中学校区 | () |
|---|
電話をかける(携帯・PHS可)
0120-008-442
「ホームページを見た」とお伝え下さい。
お問い合わせ番号をお伝えください
RHS-980913862
| 価格 | 万円 | ||
|---|---|---|---|
| 年利率 | % |
||
| ボーナス払い | 返済年数 | ||
| 頭金 | 直接入力する | 万円 | |

毎月のご返済額 |
ボーナス(×年2回) |
物件価格4,490万円 |
![]() |
![]() |
平塚市平塚3丁目
4490万円 |
電話をかける(携帯・PHS可)
0120-008-442
「ホームページを見た」とお伝え下さい。
お問い合わせ番号をお伝えください
RHS-980913862
人気の都市ガスです 駅まで徒歩18分です
土地面積30坪以上! 会話が弾む対面キッチン。
各部屋充実・満足の収納スペース