| 価格 | 3,880万円値下がり ![]() |
||||
|---|---|---|---|---|---|
| 所在地 | 神奈川県横須賀市ハイランド3丁目
この地域周辺の物件を見る |
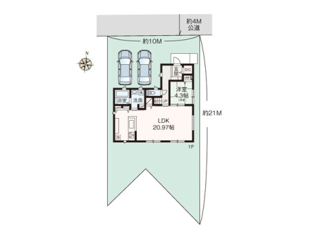
土地面積 | 182.64m² (55.25坪) | 建物面積 | 109.71u |
| 築年月 | 2025年12月築 | 間取り | 4LDK (LDK20.9/和室4.3/洋室9/洋室5.2/洋室6.7) | ||
| 交通 |
京急久里浜線 京急久里浜 ハイランド バス12分 停歩5分
JR横須賀線 久里浜 ハイランド バス12分 停歩5分 |
||||
-
電話をかける(携帯・PHS可)
0120-008-442
「ホームページを見た」とお伝え下さい。
お問い合わせ番号をお伝えください
RHS-980915380
| 特徴 |
|
|---|---|
| セールスコメント |
| 採光面 | - | 構造/階数 | 木造/地上2階建 |
|---|---|---|---|
| 建ぺい率 | 40(%) | 容積率 | 80(%) |
| 駐車場 | 有 | 現況/引渡し | 空家/即時 |
| 土地権利 | 所有権 | 私道負担面積 | - |
| 接道状況 | 接道: 北 10m 公道 道路幅: 4m | 用途地域 |
第一種低層住居専用地域
|
| セットバック | なし | 法令上の制限 | 法22条区域 公共下水道排水区域 住居誘導区域内 宅地造成工事規制区域 |
| 地目 | 宅地 | 地勢 | 平坦 |
| 建築確認番号 | 第24KAK建確03817号 | 都市計画 | 市街化区域 |
| 取引態様 | 仲介 | ||
| 情報更新日 | 2026年04月20日 | 次回更新日 | 2026年05月04日 |
| 小学校区 | () |
中学校区 | () |
|---|
電話をかける(携帯・PHS可)
0120-008-442
「ホームページを見た」とお伝え下さい。
お問い合わせ番号をお伝えください
RHS-980915380
| 価格 | 万円 | ||
|---|---|---|---|
| 年利率 | % |
||
| ボーナス払い | 返済年数 | ||
| 頭金 | 直接入力する | 万円 | |

毎月のご返済額 |
ボーナス(×年2回) |
物件価格3,880万円 |
電話をかける(携帯・PHS可)
0120-008-442
「ホームページを見た」とお伝え下さい。
お問い合わせ番号をお伝えください
RHS-980915380
都市ガス=天然ガスなので安心です。 憧れの広い土地55.25坪
ベットが2つ置ける広々空間!! 車庫入れの苦手な奥様も安心、車の出し入れが簡単。
家族団らんの出来るLDK!!