| 価格 | 4,180万円 ![]() |
||||
|---|---|---|---|---|---|
| 所在地 | 神奈川県横浜市瀬谷区下瀬谷2丁目
この地域周辺の物件を見る |
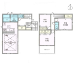
土地面積 | 102.35m² (30.96坪) | 建物面積 | 80.74u |
| 築年月 | 2026年5月築 | 間取り | 3LDK (-) | ||
| 交通 |
相鉄本線 瀬谷 下瀬谷3丁目 バス8分 停歩1分
|
||||
-
電話をかける(携帯・PHS可)
0120-008-442
「ホームページを見た」とお伝え下さい。
お問い合わせ番号をお伝えください
RHS-980931540
| 特徴 |
|
|---|---|
| セールスコメント |
| 採光面 | - | 構造/階数 | 木造/地上2階建 |
|---|---|---|---|
| 建ぺい率 | 60(%) | 容積率 | 200(%) |
| 駐車場 | 有 | 現況/引渡し | -/2026年5月下旬 |
| 土地権利 | 所有権 | 私道負担面積 | - |
| 接道状況 | 接道: 北 私道 道路幅: 5.5m | 用途地域 |
第一種住居地域
|
| セットバック | なし | 法令上の制限 | 準防火地域 高さ制限20m 第4種高度地区 宅地造成等工事規制区域 日影規制 私道持分138.11平米1/4 排水用地持分13.16平米1/4 |
| 地目 | 宅地 | 地勢 | |
| 建築確認番号 | 第25KAK建確01183号 | 都市計画 | 市街化区域 |
| 取引態様 | 仲介 | ||
| 情報更新日 | 2026年04月19日 | 次回更新日 | 2026年05月03日 |
| 小学校区 | 横浜市立瀬谷さくら小学校 (神奈川県横浜市瀬谷区) この学区の他の物件を見る |
中学校区 | 下瀬谷中学校 (神奈川県横浜市瀬谷区) この学区の他の物件を見る |
|---|
電話をかける(携帯・PHS可)
0120-008-442
「ホームページを見た」とお伝え下さい。
お問い合わせ番号をお伝えください
RHS-980931540
| 価格 | 万円 | ||
|---|---|---|---|
| 年利率 | % |
||
| ボーナス払い | 返済年数 | ||
| 頭金 | 直接入力する | 万円 | |

毎月のご返済額 |
ボーナス(×年2回) |
物件価格4,180万円 |
![]() |
![]() |
横浜市瀬谷区下瀬谷2丁目
4180万円〜4280万円 |
電話をかける(携帯・PHS可)
0120-008-442
「ホームページを見た」とお伝え下さい。
お問い合わせ番号をお伝えください
RHS-980931540
供給安定性はピカイチな都市ガスです。 理想の敷地30坪以上!
憧れの2階建て 悪天候でも楽々なバス移動
憧れだけでは終わらせない、夢の新築一戸建て