| 価格 | 3,180万円値下がり ![]() |
||||
|---|---|---|---|---|---|
| 所在地 | 神奈川県相模原市緑区二本松2丁目
この地域周辺の物件を見る |
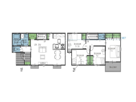
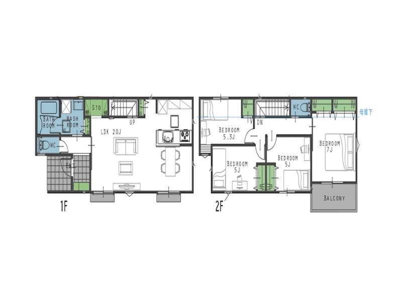
土地面積 | 141.79m² (42.89坪) | 建物面積 | 102.78u |
| 築年月 | 2025年10月築 | 間取り | 4SLDK (-) | ||
| 交通 |
京王相模原線 橋本 上の原 バス11分 停歩2分
JR横浜線 橋本 上の原 バス11分 停歩2分 |
||||
-
電話をかける(携帯・PHS可)
0120-008-442
「ホームページを見た」とお伝え下さい。
お問い合わせ番号をお伝えください
RHS-980933641
| 特徴 |
|
|---|---|
| セールスコメント |
| 採光面 | - | 構造/階数 | 木造/地上2階建 |
|---|---|---|---|
| 建ぺい率 | 60(%) | 容積率 | 160(%) |
| 駐車場 | 有 | 現況/引渡し | 空家/即時 |
| 土地権利 | 所有権 | 私道負担面積 | - |
| 接道状況 | 接道: 南 公道 道路幅: 3m | 用途地域 |
第一種住居地域
|
| セットバック | あり | 法令上の制限 | セットバック持分2.66平米有 |
| 地目 | 宅地 | 地勢 | |
| 建築確認番号 | 第25UDI1T建00017号 | 都市計画 | 市街化区域 |
| 取引態様 | 仲介 | ||
| 情報更新日 | 2026年04月22日 | 次回更新日 | 2026年05月06日 |
| 小学校区 | () |
中学校区 | () |
|---|
電話をかける(携帯・PHS可)
0120-008-442
「ホームページを見た」とお伝え下さい。
お問い合わせ番号をお伝えください
RHS-980933641
| 価格 | 万円 | ||
|---|---|---|---|
| 年利率 | % |
||
| ボーナス払い | 返済年数 | ||
| 頭金 | 直接入力する | 万円 | |

毎月のご返済額 |
ボーナス(×年2回) |
物件価格3,180万円 |
![]() |
![]() |
相模原市緑区二本松2丁目
3180万円〜3880万円 |
電話をかける(携帯・PHS可)
0120-008-442
「ホームページを見た」とお伝え下さい。
お問い合わせ番号をお伝えください
RHS-980933641
供給安定性はピカイチな都市ガスです。 将来性も抜群、南道路です。
理想の敷地30坪以上! 憧れの2階建て
悪天候でも楽々なバス移動