| 価格 | 3,380万円 ![]() |
||||
|---|---|---|---|---|---|
| 所在地 | 東京都町田市図師町
この地域周辺の物件を見る |
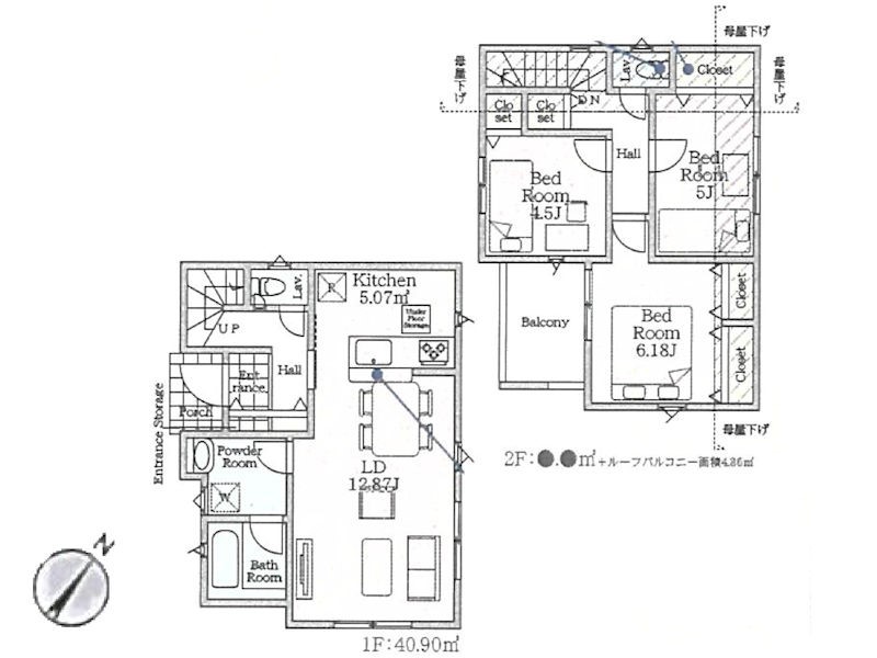
土地面積 | 122.69m² (37.11坪) | 建物面積 | 80.18u |
| 築年月 | 2026年7月築 | 間取り | 3LDK (-) | ||
| 交通 |
JR横浜線 淵野辺 根岸 バス7分 停歩14分
京王相模原線 多摩境 根岸 バス22分 停歩14分 |
||||
-
電話をかける(携帯・PHS可)
0120-008-442
「ホームページを見た」とお伝え下さい。
お問い合わせ番号をお伝えください
RHS-980945029
| 特徴 |
|
|---|---|
| セールスコメント |
| 採光面 | - | 構造/階数 | 木造/地上2階建 |
|---|---|---|---|
| 建ぺい率 | 40(%) | 容積率 | 80(%) |
| 駐車場 | 有 | 現況/引渡し | -/2026年7月下旬 |
| 土地権利 | 所有権 | 私道負担面積 | - |
| 接道状況 | 接道: 東南 公道 道路幅: 5m | 用途地域 |
第一種低層住居専用地域
|
| セットバック | なし | 法令上の制限 | 外壁後退1.0m 高さ10m 宅地造成等工事規制区域内 第1種高度地区 別途ルーフバルコニー4.86平米有 敷地内に電柱及び支線が入る場合があります。 |
| 地目 | 宅地 | 地勢 | |
| 建築確認番号 | 第R08SHC100477号 | 都市計画 | 市街化区域 |
| 取引態様 | 仲介 | ||
| 情報更新日 | 2026年04月27日 | 次回更新日 | 2026年05月11日 |
| 小学校区 | () |
中学校区 | () |
|---|
電話をかける(携帯・PHS可)
0120-008-442
「ホームページを見た」とお伝え下さい。
お問い合わせ番号をお伝えください
RHS-980945029
| 価格 | 万円 | ||
|---|---|---|---|
| 年利率 | % |
||
| ボーナス払い | 返済年数 | ||
| 頭金 | 直接入力する | 万円 | |

毎月のご返済額 |
ボーナス(×年2回) |
物件価格3,380万円 |
![]() |
![]() |
町田市図師町
3180万円〜3580万円 |
電話をかける(携帯・PHS可)
0120-008-442
「ホームページを見た」とお伝え下さい。
お問い合わせ番号をお伝えください
RHS-980945029
都市ガス=天然ガスなので安心です。 30坪以上のゆとりの敷地!
低層地区につき住環境良好です! 上り下りも楽々2階建て
バス停まで14分以内の好立地。