| 価格 | 1,690万円 ![]() |
||||
|---|---|---|---|---|---|
| 所在地 | 神奈川県相模原市緑区田名
この地域周辺の物件を見る |
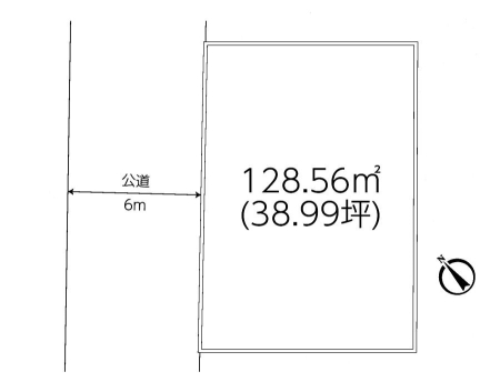
土地面積 | 128.56m² (38.89坪) | 坪単価 | 43.46万円 /坪 |
| 交通 |
JR横浜線 橋本 塚場 バス14分 停歩7分
京王相模原線 橋本 塚場 バス14分 停歩7分 |
建ぺい率 | 60 % | 容積率 | 150 % |
電話をかける(携帯・PHS可)
0120-008-442
「ホームページを見た」とお伝え下さい。
お問い合わせ番号をお伝えください
RHS-50913020
| 特徴 |
|
|---|---|
| セールスコメント | 建築条件:なし |
| 建築条件 | - | 土地権利 | 所有権 |
|---|---|---|---|
| 現況/引渡し | 更地/2026年8月上旬 | 接道状況 | 接道: 北西 公道 道路幅: 6m |
| 私道負担面積 | - | セットバック | なし |
| 地勢 | 地目 | 宅地 | |
| 用途地域 | 第一種中高層住居専用地域 | 都市計画 | 市街化区域 |
| 法令上の制限 | - | 国土法届出 | 不要 |
| 取引態様 | 専任媒介 | ||
| 情報更新日 | 2026年05月04日 | 次回更新日 | 2026年05月18日 |
| 小学校区 | 相模原市立九沢小学校 (神奈川県相模原市緑区) この学区の他の物件を見る |
中学校区 | 大沢中学校 (神奈川県相模原市緑区) この学区の他の物件を見る |
|---|
電話をかける(携帯・PHS可)
0120-008-442
「ホームページを見た」とお伝え下さい。
お問い合わせ番号をお伝えください
RHS-50913020
| 価格 | 万円 | ||
|---|---|---|---|
| 年利率 | % |
||
| ボーナス払い | 返済年数 | ||
| 頭金 | 直接入力する | 万円 | |

毎月のご返済額 |
ボーナス(×年2回) |
物件価格1,690万円 |
電話をかける(携帯・PHS可)
0120-008-442
「ホームページを見た」とお伝え下さい。
お問い合わせ番号をお伝えください
RHS-50913020
-