海老名市社家2丁目第16 新築戸建 全10棟 神奈川県海老名市社家2丁目|3,280万円の新築一戸建て|分譲住宅や新築物件|エムイーPLUS町田

TOPページ >
物件検索 >
新築一戸建て
>
海老名市
>
JR相模線
>
海老名市社家2丁目第16 新築戸建 全10棟

新築一戸建て

海老名市社家2丁目第16 新築戸建 全10棟
お気に入り
価格 3,280万円値下がり ローンシミュレーション
所在地 神奈川県海老名市社家2丁目
この地域周辺の物件を見る
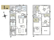
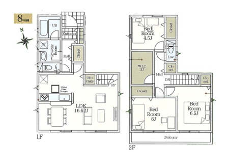
土地面積 101.81m² (30.8坪) 建物面積 87.48u
築年月 2025年12月築 間取り 3LDK (-)
交通
JR相模線 社家 徒歩14分
小田急小田原線 厚木 徒歩23分

毎日の通勤も苦にならない徒歩圏内 敷地面積30坪以上!
料理が楽しくなる! 四季の花に囲まれて暮らす2階建て
マイホームの夢は新築で!

ここがおすすめ

-


  • 現地外観写真 外観■暮らしを豊かにする充実した仕様設備で快適に
  •  間取り
  • 現地外観写真 外観■新しい暮らしが始まる場所で、家族の絆を深める
  • 現地外観写真 外観■新しい住まい、街の新しい風景
  • 現地外観写真 外観■家族みんなが笑顔で過ごせる、安心感のある住まい
  •  外観■カースペース有
  • 玄関 外観■ 帰るたびにホッとする、安心感のある佇まい
  •  区画図
  • 玄関 内装■玄関はお家の顔!おしゃれな玄関でお客様をお迎え!
  • トイレ 内装■使いやすさと清潔感にこだわった空間
  • 洗面台・洗面所 内装■お洒落で清潔感のある洗面所
  • 浴室 内装■リラックスできる、穏やかな雰囲気です
  • キッチン 内装■美味しい時間が生まれる、笑顔あふれるキッチン
  • キッチン 内装■美味しさの魔法がかかる、特別なキッチン
  • キッチン 内装■アイデア広がる、クリエイティブな料理空間
  • リビング 内装■光と風を感じる、リラックスできる空間
  • リビング 内装■日常をちょっと特別にする、憩いの空間
  • その他内観 内装■自然と心がほどける、リラックスできる場所
  • リビング 内装■くつろぎと笑顔が集まる、心温まるリビング
  • その他内観 内装■自分だけのスペース どんなお部屋にするかとっても楽しみですね
  • 子供部屋 内装■自分の好みに合わせたインテリアを整えやすく個性を反映できる場所です
  • 寝室 内装■シンプルな空間で、収納付きベッドやデスクなど、多機能な家具を活用しやすいです
  • その他内観 内装■シンプルで使いやすい空間がスッキリ感じられます
  • バルコニー 内装■ 空を眺めながら、ほっと一息つける特別な空間
  • その他内観 内装■清潔感あふれるお部屋で毎日を快適に過ごせます
  • その他内観 内装■落ち着いた色合いのお部屋で穏やかな時間を楽しめます
  • その他内観 設備■手洗いや顔を洗う時も快適に使える便利なシャワー
  • その他内観 設備■画面でしっかり確認でき防犯対策に最適
  • その他内観 設備■防犯カメラがあると、犯罪の抑止になるので安心です。
  • その他内観 設備■鍵を取り出さずに便利に操作できて快適
お問い合わせ、資料請求、見学のお申し込みはこちらから

電話をかける(携帯・PHS可)
0120-008-442
「ホームページを見た」とお伝え下さい。

お問い合わせ番号をお伝えください
RHS-980946236

内見予約
お問合せ

セールスポイント

特徴
  • フローリング
  • システムキッチン
  • カウンターキッチン
  • バス・トイレ別
  • 室内洗濯機置場
  • コンロ三口
  • Wクローゼット
  • 床下収納
  • バルコニー
  • カウンターキッチン
  • プライスダウン
セールスコメント
 


物件概要

採光面 - 構造/階数 木造/地上2階建
建ぺい率 60(%) 容積率 200(%)
駐車場 現況/引渡し 空家/即時
土地権利 所有権 私道負担面積 -

接道状況 接道: 北 公道 道路幅: 4.5m 用途地域
第一種住居地域
セットバック なし 法令上の制限 ゴミ置場持分:1/7 法22条区域
地目 宅地 地勢
建築確認番号 第KBI-SGM25-10-2652号 都市計画 市街化区域
取引態様 仲介
情報更新日 2026年05月13日 次回更新日 2026年05月27日
※各種情報と差異がある場合は現況優先となります

学区情報

小学校区
()
中学校区
()
※物件情報の学区情報について
当サイト物件情報に記載されております通学区域(学区)情報は、国土数値情報ダウンロードサービスが提供する小学校区データ【2016年度】及び中学校区データ【2016年度】を元に加工したものですので、記載情報が現在の学区域と異なる場合がございます。
国土数値情報ダウンロードサービスのWEBサイト上で記述通り、データは必ずしも正確とは言えません。また、通学区域(学区)は毎年見直しの対象となりますので、そちらを踏まえ学区情報は参考としてご活用下さい。
お問い合わせ、資料請求、見学のお申し込みはこちらから

電話をかける(携帯・PHS可)
0120-008-442
「ホームページを見た」とお伝え下さい。

お問い合わせ番号をお伝えください
RHS-980946236

内見予約
お問合せ

この物件でローンシミュレーションする

価格 万円
年利率
ボーナス払い 返済年数
頭金 直接入力する 万円

毎月のご返済額

ボーナス(×年2回)

物件価格

3,280万円
※返済金額はあくまでも目安です。

こちらの物件は複数区画の分譲地・他にも販売中のマンションがあります。

海老名市社家2丁目
3280万円〜3780万円

電話をかける(携帯・PHS可)
0120-008-442
「ホームページを見た」とお伝え下さい。

お問い合わせ番号をお伝えください
RHS-980946236

内見予約
お問合せ

お問い合わせ

お問い合わせ内容
お問合せ内容必須
【備考欄】
詳細な見学ご希望時間、ご質問、ご希望条件などがございましたらお聞かせ下さい。
(2000文字以内)
お客様情報
お名前必須
連絡先必須 メールアドレス

※ご記入いただいたメールアドレス宛てに、お問合せ内容の確認メールをお送りいたします。
※Yahoo!メールなどのフリーメールをご利用の場合、迷惑メールフォルダに入る場合があります。
 迷惑メールのフォルダ・設定等をご確認下さい。
電話番号
FAX(任意)
※ご入力いただいたお客さまの個人情報は、「個人情報の取扱いについて」に基づき適正に取り扱います。必ずお読みになり、同意の上お問い合わせください。

お気軽にお問い合わせください

0120-008-442
物件番号 RHS-980946236
※「ホームページを見た」
とお伝え下さい。