| 価格 | 8,049万円 ![]() |
||||
|---|---|---|---|---|---|
| 所在地 | 東京都府中市本宿町3丁目
この地域周辺の物件を見る |
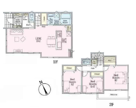
土地面積 | 121.19m² (36.66坪) | 建物面積 | 96.44u |
| 築年月 | 2026年4月築 | 間取り | 4LDK (-) | ||
| 交通 |
京王線 分倍河原 徒歩15分
|
||||
-
電話をかける(携帯・PHS可)
0120-008-442
「ホームページを見た」とお伝え下さい。
お問い合わせ番号をお伝えください
RHS-980946201
| 特徴 |
|
|---|---|
| セールスコメント |
| 採光面 | - | 構造/階数 | 木造/地上2階建 |
|---|---|---|---|
| 建ぺい率 | 40(%) | 容積率 | 80(%) |
| 駐車場 | 有 | 現況/引渡し | 空家/即時 |
| 土地権利 | 所有権 | 私道負担面積 | - |
| 接道状況 | 接道: 南 公道 道路幅: 4m | 用途地域 |
第一種低層住居専用地域
|
| セットバック | なし | 法令上の制限 | 第一種高度地区 法22条区域 宅地造成工事規制区域 埋蔵文化財 日陰規制3h-2h1.5m 高さ10m |
| 地目 | 宅地 | 地勢 | |
| 建築確認番号 | 第25UDIW建10266号 | 都市計画 | 市街化区域 |
| 取引態様 | 仲介 | ||
| 情報更新日 | 2026年05月13日 | 次回更新日 | 2026年05月27日 |
| 小学校区 | () |
中学校区 | () |
|---|
電話をかける(携帯・PHS可)
0120-008-442
「ホームページを見た」とお伝え下さい。
お問い合わせ番号をお伝えください
RHS-980946201
| 価格 | 万円 | ||
|---|---|---|---|
| 年利率 | % |
||
| ボーナス払い | 返済年数 | ||
| 頭金 | 直接入力する | 万円 | |

毎月のご返済額 |
ボーナス(×年2回) |
物件価格8,049万円 |
電話をかける(携帯・PHS可)
0120-008-442
「ホームページを見た」とお伝え下さい。
お問い合わせ番号をお伝えください
RHS-980946201
ポイントとなる条件の都市ガスです。 洗濯物もカラッと乾く風通しと日差しの南道路です。
商業施設が整った駅徒歩圏内 一番人気。敷地30坪以上!
孤独にならないカウンターキッチン!!