藤沢市亀井野 新築戸建 全1棟 神奈川県藤沢市亀井野 |7,680万円の新築一戸建て|分譲住宅や新築物件|エムイーPLUS町田

TOPページ >
物件検索 >
新築一戸建て
>
藤沢市
>
小田急江ノ島線
>
藤沢市亀井野 新築戸建 全1棟

新築一戸建て

藤沢市亀井野 新築戸建 全1棟
お気に入り
価格 7,680万円 ローンシミュレーション
所在地 神奈川県藤沢市亀井野
この地域周辺の物件を見る
土地面積 130.44m² (39.46坪) 建物面積 104.27u
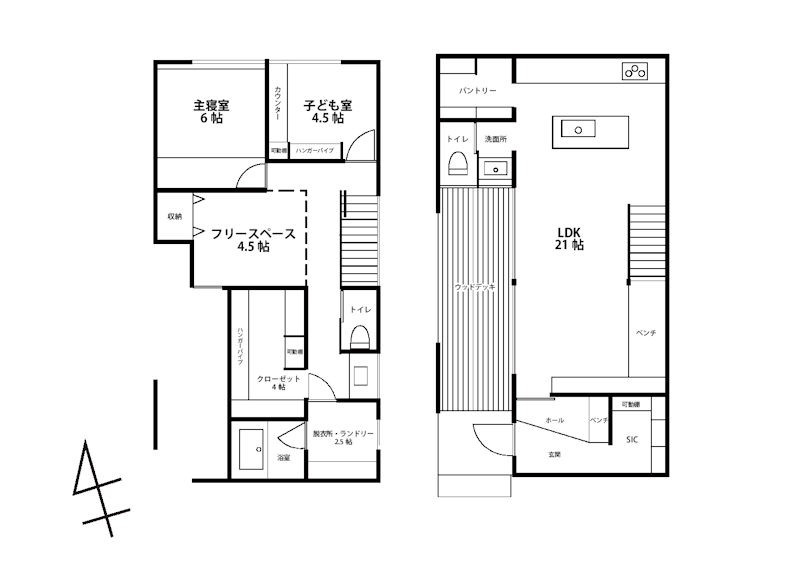
築年月 2026年3月築 間取り 3LDK (-)
交通
小田急江ノ島線 六会日大前 徒歩7分
小田急江ノ島線 湘南台 徒歩20分

夜遅くても安心駅近物件!! ポイントとなる条件の都市ガスです。
商業施設が整った駅徒歩圏内 一番人気。敷地30坪以上!
夜も静かでゆったり家族だんらん

ここがおすすめ

-


  • 現地外観写真 外観■家族みんなが笑顔で過ごせる、安心感のある住まい
  •  間取り
  • 現地外観写真 外観■暮らしを豊かにする充実した仕様設備で快適に
  • その他 外観■天気の良い日はウッドデッキでのんびり日向ぼっこ
  •  区画図
  • キッチン 内装■シンプルで機能的、毎日使いやすいキッチン
  • リビング 内装■心落ち着く場所、ゆったり過ごせるリビング
  • リビング 内装■シンプルだけど贅沢、大切な人と過ごす心がほどける空間
  • その他内観 内装■ふとした瞬間に幸せを感じる、心地よい場所
  • リビング 内装■光と風を感じる、リラックスできる空間
  • その他内観 内装■優雅で穏やかな時間が流れる空間
  • 子供部屋 内装■仕事や勉強のスペースに使うことで、集中しやすく静かな環境が整います
  • 周辺環境 駅 560m 小田急江ノ島線「六会日大前」駅
  • 周辺環境 小学校 560m 藤沢市立六会小学校
  • 周辺環境 中学校 80m 藤沢市立六会中学校
  • 周辺環境 幼稚園・保育園 600m 六会保育園
  • 周辺環境 病院 800m 関野内科医院
  • 周辺環境 スーパー 1200m ヨークフーズ藤沢六会店
お問い合わせ、資料請求、見学のお申し込みはこちらから

電話をかける(携帯・PHS可)
0120-008-442
「ホームページを見た」とお伝え下さい。

お問い合わせ番号をお伝えください
RHS-980947052

内見予約
お問合せ

セールスポイント

特徴
  • フローリング
  • システムキッチン
  • 室内洗濯機置場
  • 都市ガス
セールスコメント
 


物件概要

採光面 - 構造/階数 木造/地上2階建
建ぺい率 50(%) 容積率 80(%)
駐車場 現況/引渡し 空家/即時
土地権利 所有権 私道負担面積 -

接道状況 接道: 南西 公道 道路幅: 4.5m 用途地域
第一種低層住居専用地域
セットバック なし 法令上の制限 22条区域 現況モデルハウスとして使用中
地目 宅地 地勢
建築確認番号 都市計画 市街化区域
取引態様 仲介
情報更新日 2026年05月14日 次回更新日 2026年05月28日
※各種情報と差異がある場合は現況優先となります

学区情報

小学校区 藤沢市立六会小学校
(神奈川県藤沢市)
この学区の他の物件を見る
中学校区 六会中学校
(神奈川県藤沢市)
この学区の他の物件を見る
※物件情報の学区情報について
当サイト物件情報に記載されております通学区域(学区)情報は、国土数値情報ダウンロードサービスが提供する小学校区データ【2016年度】及び中学校区データ【2016年度】を元に加工したものですので、記載情報が現在の学区域と異なる場合がございます。
国土数値情報ダウンロードサービスのWEBサイト上で記述通り、データは必ずしも正確とは言えません。また、通学区域(学区)は毎年見直しの対象となりますので、そちらを踏まえ学区情報は参考としてご活用下さい。
お問い合わせ、資料請求、見学のお申し込みはこちらから

電話をかける(携帯・PHS可)
0120-008-442
「ホームページを見た」とお伝え下さい。

お問い合わせ番号をお伝えください
RHS-980947052

内見予約
お問合せ

この物件でローンシミュレーションする

価格 万円
年利率
ボーナス払い 返済年数
頭金 直接入力する 万円

毎月のご返済額

ボーナス(×年2回)

物件価格

7,680万円
※返済金額はあくまでも目安です。

電話をかける(携帯・PHS可)
0120-008-442
「ホームページを見た」とお伝え下さい。

お問い合わせ番号をお伝えください
RHS-980947052

内見予約
お問合せ

お問い合わせ

お問い合わせ内容
お問合せ内容必須
【備考欄】
詳細な見学ご希望時間、ご質問、ご希望条件などがございましたらお聞かせ下さい。
(2000文字以内)
お客様情報
お名前必須
連絡先必須 メールアドレス

※ご記入いただいたメールアドレス宛てに、お問合せ内容の確認メールをお送りいたします。
※Yahoo!メールなどのフリーメールをご利用の場合、迷惑メールフォルダに入る場合があります。
 迷惑メールのフォルダ・設定等をご確認下さい。
電話番号
FAX(任意)
※ご入力いただいたお客さまの個人情報は、「個人情報の取扱いについて」に基づき適正に取り扱います。必ずお読みになり、同意の上お問い合わせください。

お気軽にお問い合わせください

0120-008-442
物件番号 RHS-980947052
※「ホームページを見た」
とお伝え下さい。