綾瀬市小園南2丁目第4 新築戸建 全2棟 神奈川県綾瀬市小園南2丁目|3,280万円の新築一戸建て|分譲住宅や新築物件|エムイーPLUS町田

TOPページ >
物件検索 >
新築一戸建て
>
綾瀬市
>
相鉄本線
>
綾瀬市小園南2丁目第4 新築戸建 全2棟

新築一戸建て

綾瀬市小園南2丁目第4 新築戸建 全2棟
お気に入り
価格 3,280万円 ローンシミュレーション
所在地 神奈川県綾瀬市小園南2丁目
この地域周辺の物件を見る
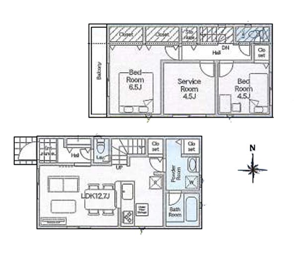
土地面積 93.14m² (28.17坪) 建物面積 72.9u
築年月 2026年4月築 間取り 2SLDK (-)
交通
相鉄本線 海老名 小園団地 バス22分 停歩2分
小田急小田原線 海老名 小園団地 バス22分 停歩2分

都市ガス=地球にやさしいエネルギーです。 料理が楽しくなる!
低層住居専用地域!環境重視の方にオススメです。 四季の花に囲まれて暮らす2階建て
バス停が近く移動便利です。

ここがおすすめ

-


  • 現地外観写真 2号棟  ■暮らしを豊かにする充実した仕様設備で快適に
  •  2号棟
  • 現地外観写真 2号棟  ■新しい暮らしが始まる場所で、家族の絆を深める
  • 現地外観写真 外観■新しい住まい、街の新しい風景
  • 現地外観写真 2号棟  ■家族みんなが笑顔で過ごせる、安心感のある住まい
  •  2号棟  ■家族みんなが笑顔で過ごせる、安心感のある住まい
  • 玄関 2号棟  ■ 帰るたびにホッとする、安心感のある佇まい
  •  区画図
  • 玄関 2号棟  ■ ここから始まる一日、すっきり整った玄関
  • トイレ 2号棟  ■毎日使う場所だからこそ、清潔感溢れる空間
  • 洗面台・洗面所 2号棟  ■朝の準備がスムーズにできる広さです
  • 浴室 2号棟  ■家族みんなが気持ちよく使える設計です
  • キッチン 2号棟  ■シンプルで機能的、毎日使いやすいキッチン
  • キッチン 2号棟  ■キレイに片付く、使いやすいキッチン
  • キッチン 2号棟  ■家族の絆を深める、温もりのあるキッチン
  • リビング 2号棟  ■くつろぎと笑顔が集まる、心温まるリビング
  • リビング 2号棟  ■シンプルだけど贅沢、大切な人と過ごす心がほどける空間
  • その他内観 2号棟  ■ふとした瞬間に幸せを感じる、心地よい場所
  • リビング 2号棟  ■光と風を感じる、リラックスできる空間
  • その他内観 2号棟  ■優雅で穏やかな時間が流れる空間
  • 子供部屋 2号棟  ■仕事や勉強のスペースに使うことで、集中しやすく静かな環境が整います
  • 寝室 2号棟  ■快適な環境で、日常の疲れを癒せる空間
  • その他内観 2号棟  ■落ち着いた色合いのお部屋で穏やかな時間を楽しめます
  • バルコニー 2号棟  ■ 季節の移ろいを感じられる開放的な空間です
  • リビング 2号棟  ■心落ち着く場所、ゆったり過ごせるリビング
  • その他内観 2号棟  ■どこになにを置くか楽しみな自分のお部屋
  • その他内観 2号棟  ■機能的で使いやすいお部屋で毎日を快適に
  • 収納 2号棟  ■広々とした収納スペース
  • その他内観 設備■環境に優しくエコなEV車ライフをサポート
  • その他内観 設備■鍵を取り出さずに便利に操作できて快適
お問い合わせ、資料請求、見学のお申し込みはこちらから

電話をかける(携帯・PHS可)
0120-008-442
「ホームページを見た」とお伝え下さい。

お問い合わせ番号をお伝えください
RHS-980947021

内見予約
お問合せ

セールスポイント

特徴
  • フローリング
  • システムキッチン
  • カウンターキッチン
  • シャワートイレ
  • 浴室乾燥機
  • 床下収納
  • バルコニー
  • TVドアホン
  • 都市ガス
  • カウンターキッチン
セールスコメント
 


物件概要

採光面 - 構造/階数 木造/地上2階建
建ぺい率 50(%) 容積率 80(%)
駐車場 現況/引渡し 空家/即時
土地権利 所有権 私道負担面積 -

接道状況 接道: 西 公道 道路幅: 6m 用途地域
第一種低層住居専用地域
セットバック なし 法令上の制限 宅地造成工事規制区域 法第22条区域 日影規制3h−2h/1.5m 高さ制限10m
地目 宅地 地勢
建築確認番号 第KBI-SGM25-10-4541号 都市計画 市街化区域
取引態様 仲介
情報更新日 2026年05月15日 次回更新日 2026年05月29日
※各種情報と差異がある場合は現況優先となります

学区情報

小学校区 綾瀬市立早園小学校
(神奈川県綾瀬市)
この学区の他の物件を見る
中学校区 城山中学校
(神奈川県綾瀬市)
この学区の他の物件を見る
※物件情報の学区情報について
当サイト物件情報に記載されております通学区域(学区)情報は、国土数値情報ダウンロードサービスが提供する小学校区データ【2016年度】及び中学校区データ【2016年度】を元に加工したものですので、記載情報が現在の学区域と異なる場合がございます。
国土数値情報ダウンロードサービスのWEBサイト上で記述通り、データは必ずしも正確とは言えません。また、通学区域(学区)は毎年見直しの対象となりますので、そちらを踏まえ学区情報は参考としてご活用下さい。
お問い合わせ、資料請求、見学のお申し込みはこちらから

電話をかける(携帯・PHS可)
0120-008-442
「ホームページを見た」とお伝え下さい。

お問い合わせ番号をお伝えください
RHS-980947021

内見予約
お問合せ

この物件でローンシミュレーションする

価格 万円
年利率
ボーナス払い 返済年数
頭金 直接入力する 万円

毎月のご返済額

ボーナス(×年2回)

物件価格

3,280万円
※返済金額はあくまでも目安です。

こちらの物件は複数区画の分譲地・他にも販売中のマンションがあります。

綾瀬市小園南2丁目
3280万円〜3380万円

電話をかける(携帯・PHS可)
0120-008-442
「ホームページを見た」とお伝え下さい。

お問い合わせ番号をお伝えください
RHS-980947021

内見予約
お問合せ

お問い合わせ

お問い合わせ内容
お問合せ内容必須
【備考欄】
詳細な見学ご希望時間、ご質問、ご希望条件などがございましたらお聞かせ下さい。
(2000文字以内)
お客様情報
お名前必須
連絡先必須 メールアドレス

※ご記入いただいたメールアドレス宛てに、お問合せ内容の確認メールをお送りいたします。
※Yahoo!メールなどのフリーメールをご利用の場合、迷惑メールフォルダに入る場合があります。
 迷惑メールのフォルダ・設定等をご確認下さい。
電話番号
FAX(任意)
※ご入力いただいたお客さまの個人情報は、「個人情報の取扱いについて」に基づき適正に取り扱います。必ずお読みになり、同意の上お問い合わせください。

お気軽にお問い合わせください

0120-008-442
物件番号 RHS-980947021
※「ホームページを見た」
とお伝え下さい。