厚木市船子第7 新築戸建 全3棟 神奈川県厚木市船子 |3,180万円の新築一戸建て|分譲住宅や新築物件|エムイーPLUS町田

TOPページ >
物件検索 >
新築一戸建て
>
厚木市
>
小田急小田原線
>
厚木市船子第7 新築戸建 全3棟

新築一戸建て

厚木市船子第7 新築戸建 全3棟NEW
お気に入り
価格 3,180万円 ローンシミュレーション
所在地 神奈川県厚木市船子
この地域周辺の物件を見る
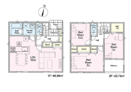
土地面積 124.73m² (37.73坪) 建物面積 100.44u
築年月 2026年7月築 間取り 4LDK (-)
交通
小田急小田原線 本厚木 赤羽根入口 バス6分 停歩10分
小田急小田原線 愛甲石田 船子 バス4分 停歩8分

30坪以上のゆとりの敷地! 上り下りも楽々2階建て
バス停まで10分以内の好立地。 憧れの新築一戸建て!
医療施設充実の安心の住環境

ここがおすすめ

-


  •  間取り
  •  区画図
  • 周辺環境 駅 1700m 小田急小田原線「本厚木」駅
  • 周辺環境 小学校 1600m 厚木市立愛甲小学校
  • 周辺環境 中学校 1300m 厚木市立東名中学校
  • 周辺環境 幼稚園・保育園 1100m 厚南幼児園
  • 周辺環境 病院 486m 社会医療法人社団とうめい厚木クリニック
  • 周辺環境 スーパー 351m ベルク厚木船子店
お問い合わせ、資料請求、見学のお申し込みはこちらから

電話をかける(携帯・PHS可)
0120-008-442
「ホームページを見た」とお伝え下さい。

お問い合わせ番号をお伝えください
RHS-980949782

内見予約
お問合せ

セールスポイント

特徴
  • フローリング
  • システムキッチン
  • シャンプードレッサー
  • シャワートイレ
  • 浴室乾燥機
  • コンロ三口
  • Wクローゼット
  • 床下収納
  • バルコニー
  • TVドアホン
  • カースペース2台以上
  • 新着物件
セールスコメント
 


物件概要

採光面 - 構造/階数 木造/地上2階建
建ぺい率 60(%) 容積率 200(%)
駐車場 現況/引渡し -/2026年7月下旬
土地権利 所有権 私道負担面積 -

接道状況 接道: 北 公道 道路幅: 5.8m 用途地域
第二種住居地域
セットバック なし 法令上の制限 日影規制 道路斜線制限 隣地斜線制限 準防火地域 法第22条区域 景観法 都市再生特別措置法 宅地造成等工事規制区域
地目 宅地 地勢 0
建築確認番号 第R08SHC103555号 都市計画 市街化区域
取引態様 仲介
情報更新日 2026年04月22日 次回更新日 2026年05月06日
※各種情報と差異がある場合は現況優先となります

学区情報

小学校区
()
中学校区
()
※物件情報の学区情報について
当サイト物件情報に記載されております通学区域(学区)情報は、国土数値情報ダウンロードサービスが提供する小学校区データ【2016年度】及び中学校区データ【2016年度】を元に加工したものですので、記載情報が現在の学区域と異なる場合がございます。
国土数値情報ダウンロードサービスのWEBサイト上で記述通り、データは必ずしも正確とは言えません。また、通学区域(学区)は毎年見直しの対象となりますので、そちらを踏まえ学区情報は参考としてご活用下さい。
お問い合わせ、資料請求、見学のお申し込みはこちらから

電話をかける(携帯・PHS可)
0120-008-442
「ホームページを見た」とお伝え下さい。

お問い合わせ番号をお伝えください
RHS-980949782

内見予約
お問合せ

この物件でローンシミュレーションする

価格 万円
年利率
ボーナス払い 返済年数
頭金 直接入力する 万円

毎月のご返済額

ボーナス(×年2回)

物件価格

3,180万円
※返済金額はあくまでも目安です。

こちらの物件は複数区画の分譲地・他にも販売中のマンションがあります。

厚木市船子
3180万円〜3580万円
  • こちらの物件を見たお客様はこんな物件もチェックしています。
  • お気に入り物件

電話をかける(携帯・PHS可)
0120-008-442
「ホームページを見た」とお伝え下さい。

お問い合わせ番号をお伝えください
RHS-980949782

内見予約
お問合せ

お問い合わせ

お問い合わせ内容
お問合せ内容必須
【備考欄】
詳細な見学ご希望時間、ご質問、ご希望条件などがございましたらお聞かせ下さい。
(2000文字以内)
お客様情報
お名前必須
連絡先必須 メールアドレス

※ご記入いただいたメールアドレス宛てに、お問合せ内容の確認メールをお送りいたします。
※Yahoo!メールなどのフリーメールをご利用の場合、迷惑メールフォルダに入る場合があります。
 迷惑メールのフォルダ・設定等をご確認下さい。
電話番号
FAX(任意)
※ご入力いただいたお客さまの個人情報は、「個人情報の取扱いについて」に基づき適正に取り扱います。必ずお読みになり、同意の上お問い合わせください。

お気軽にお問い合わせください

0120-008-442
物件番号 RHS-980949782
※「ホームページを見た」
とお伝え下さい。