調布市富士見町3丁目第9 新築戸建 全8棟 東京都調布市富士見町3丁目|6,990万円の新築一戸建て|分譲住宅や新築物件|エムイーPLUS町田

TOPページ >
物件検索 >
新築一戸建て
>
調布市
>
京王線
>
調布市富士見町3丁目第9 新築戸建 全8棟

新築一戸建て

調布市富士見町3丁目第9 新築戸建 全8棟NEW
お気に入り
価格 6,990万円 ローンシミュレーション
所在地 東京都調布市富士見町3丁目
この地域周辺の物件を見る
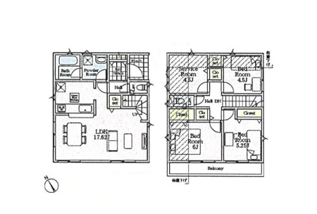
土地面積 90.01m² (27.23坪) 建物面積 88.29u
築年月 2026年10月築 間取り 3SLDK (-)
交通
京王線 西調布 徒歩18分
京王線 調布 徒歩22分

ポイントとなる条件の都市ガスです。 商業施設が整った駅徒歩圏内
夜も静かでゆったり家族だんらん 休日をゆっくり過ごせる2階建て
最新の住宅、新築一戸建て

ここがおすすめ

-


  •  間取り
  •  区画図
  • 周辺環境 駅 1440m 京王線「西調布」駅
  • 周辺環境 小学校 160m 調布市立石原小学校
  • 周辺環境 中学校 1040m 調布市立調布中学校
  • 周辺環境 幼稚園・保育園 400m 保恵学園幼稚園
  • 周辺環境 病院 695m 北多摩病院
  • 周辺環境 スーパー 1000m オーケー調布店
お問い合わせ、資料請求、見学のお申し込みはこちらから

電話をかける(携帯・PHS可)
0120-008-442
「ホームページを見た」とお伝え下さい。

お問い合わせ番号をお伝えください
RHS-980949884

内見予約
お問合せ

セールスポイント

特徴
  • フローリング
  • システムキッチン
  • シャンプードレッサー
  • シャワートイレ
  • 浴室乾燥機
  • コンロ三口
  • 床下収納
  • TVドアホン
  • 都市ガス
  • 新着物件
セールスコメント
 


物件概要

採光面 - 構造/階数 木造/地上2階建
建ぺい率 40(%) 容積率 60(%)
駐車場 現況/引渡し -/2026年10月下旬
土地権利 所有権 私道負担面積 -

接道状況 接道: 東南 公道 道路幅: 8m
接道: 南西 私道 道路幅: 4m
用途地域
第一種低層住居専用地域
セットバック なし 法令上の制限 準防火地域 第一種高度地区 宅地造成等規制区域 高さ10m 私道持分:地番6-25地積106平米・地番6-37地積3.48平米・地番6-38地積0.77平米各4/10
地目 宅地 地勢 0
建築確認番号 第R08SHC101010号 都市計画 市街化区域
取引態様 仲介
情報更新日 2026年04月24日 次回更新日 2026年05月08日
※各種情報と差異がある場合は現況優先となります

学区情報

小学校区
()
中学校区
()
※物件情報の学区情報について
当サイト物件情報に記載されております通学区域(学区)情報は、国土数値情報ダウンロードサービスが提供する小学校区データ【2016年度】及び中学校区データ【2016年度】を元に加工したものですので、記載情報が現在の学区域と異なる場合がございます。
国土数値情報ダウンロードサービスのWEBサイト上で記述通り、データは必ずしも正確とは言えません。また、通学区域(学区)は毎年見直しの対象となりますので、そちらを踏まえ学区情報は参考としてご活用下さい。
お問い合わせ、資料請求、見学のお申し込みはこちらから

電話をかける(携帯・PHS可)
0120-008-442
「ホームページを見た」とお伝え下さい。

お問い合わせ番号をお伝えください
RHS-980949884

内見予約
お問合せ

この物件でローンシミュレーションする

価格 万円
年利率
ボーナス払い 返済年数
頭金 直接入力する 万円

毎月のご返済額

ボーナス(×年2回)

物件価格

6,990万円
※返済金額はあくまでも目安です。

こちらの物件は複数区画の分譲地・他にも販売中のマンションがあります。

調布市富士見町3丁目
6290万円〜6990万円

電話をかける(携帯・PHS可)
0120-008-442
「ホームページを見た」とお伝え下さい。

お問い合わせ番号をお伝えください
RHS-980949884

内見予約
お問合せ

お問い合わせ

お問い合わせ内容
お問合せ内容必須
【備考欄】
詳細な見学ご希望時間、ご質問、ご希望条件などがございましたらお聞かせ下さい。
(2000文字以内)
お客様情報
お名前必須
連絡先必須 メールアドレス

※ご記入いただいたメールアドレス宛てに、お問合せ内容の確認メールをお送りいたします。
※Yahoo!メールなどのフリーメールをご利用の場合、迷惑メールフォルダに入る場合があります。
 迷惑メールのフォルダ・設定等をご確認下さい。
電話番号
FAX(任意)
※ご入力いただいたお客さまの個人情報は、「個人情報の取扱いについて」に基づき適正に取り扱います。必ずお読みになり、同意の上お問い合わせください。

お気軽にお問い合わせください

0120-008-442
物件番号 RHS-980949884
※「ホームページを見た」
とお伝え下さい。