茅ヶ崎市南湖5丁目 新築戸建 全2棟 神奈川県茅ヶ崎市南湖5丁目|4,780万円の新築一戸建て|分譲住宅や新築物件|エムイーPLUS町田

TOPページ >
物件検索 >
新築一戸建て
>
茅ヶ崎市
>
JR東海道本線
>
茅ヶ崎市南湖5丁目 新築戸建 全2棟

新築一戸建て

茅ヶ崎市南湖5丁目 新築戸建 全2棟NEW
お気に入り
価格 4,780万円 ローンシミュレーション
所在地 神奈川県茅ヶ崎市南湖5丁目
この地域周辺の物件を見る
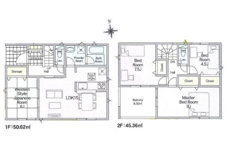
土地面積 130.81m² (39.57坪) 建物面積 91.7u
築年月 2026年6月築 間取り 1SLDK (-)
交通
JR東海道本線 仲町 バス7分 停歩5分

都市ガス=価格もお得なエネルギーです。 人気の敷地30坪以上!
落ち着いた住環境の代名詞・低層住居専用地域 夢のマイホーム2階建て
夢のマイホームは新築で!

ここがおすすめ

-


  • 現地外観写真 外観
  •  間取り
  • 現地外観写真 外観
  • 現地外観写真 外観
  •  区画図
  • 周辺環境 駅 2080m JR東海道線「茅ケ崎」駅
  • 周辺環境 小学校 500m 茅ヶ崎市立西浜小学校
  • 周辺環境 中学校 300m 茅ヶ崎市立西浜中学校
  • 周辺環境 幼稚園・保育園 600m ひまわり愛児園
  • 周辺環境 病院 1000m 佐久間クリニック
  • 周辺環境 スーパー 500m たまや 浜見平店
お問い合わせ、資料請求、見学のお申し込みはこちらから

電話をかける(携帯・PHS可)
0120-008-442
「ホームページを見た」とお伝え下さい。

お問い合わせ番号をお伝えください
RHS-980950440

内見予約
お問合せ

セールスポイント

特徴
  • フローリング
  • システムキッチン
  • シャワートイレ
  • 室内洗濯機置場
  • 浴室乾燥機
  • 床下収納
  • バルコニー
  • 都市ガス
  • カースペース2台以上
  • 新着物件
セールスコメント
 専用通路については将来的に位置指定道路に認定予定、ご協力を前提に売買。専用通路の面積を増改築後に建物面積に含む事は出来ません。斜線に関しても将来的に道路になる可能性がある事を配慮していただきます。


物件概要

採光面 - 構造/階数 木造/地上2階建
建ぺい率 50(%) 容積率 100(%)
駐車場 現況/引渡し -/2026年6月下旬
土地権利 所有権 私道負担面積 -

接道状況 接道: 北西 公道 道路幅: 4m 用途地域
第一種低層住居専用地域
セットバック あり 法令上の制限 準防火地域 北側ブロックの一部隣地に越境(現況渡し)覚書等取得は売主はいたしません 敷地の一部に地役権設定有 南側隣地専用通路/隅切り、通行利用できます。専用通路へ自動車バイク自転車等駐車出来ません
地目 宅地 地勢 0
建築確認番号 第2025SBC-確01633H号 都市計画 市街化区域
取引態様 仲介
情報更新日 2026年04月28日 次回更新日 2026年05月12日
※各種情報と差異がある場合は現況優先となります

学区情報

小学校区 茅ヶ崎市立西浜小学校
(神奈川県茅ヶ崎市)
この学区の他の物件を見る
中学校区 西浜中学校
(神奈川県茅ヶ崎市)
この学区の他の物件を見る
※物件情報の学区情報について
当サイト物件情報に記載されております通学区域(学区)情報は、国土数値情報ダウンロードサービスが提供する小学校区データ【2016年度】及び中学校区データ【2016年度】を元に加工したものですので、記載情報が現在の学区域と異なる場合がございます。
国土数値情報ダウンロードサービスのWEBサイト上で記述通り、データは必ずしも正確とは言えません。また、通学区域(学区)は毎年見直しの対象となりますので、そちらを踏まえ学区情報は参考としてご活用下さい。
お問い合わせ、資料請求、見学のお申し込みはこちらから

電話をかける(携帯・PHS可)
0120-008-442
「ホームページを見た」とお伝え下さい。

お問い合わせ番号をお伝えください
RHS-980950440

内見予約
お問合せ

この物件でローンシミュレーションする

価格 万円
年利率
ボーナス払い 返済年数
頭金 直接入力する 万円

毎月のご返済額

ボーナス(×年2回)

物件価格

4,780万円
※返済金額はあくまでも目安です。

こちらの物件は複数区画の分譲地・他にも販売中のマンションがあります。

茅ヶ崎市南湖5丁目
4780万円〜5180万円

電話をかける(携帯・PHS可)
0120-008-442
「ホームページを見た」とお伝え下さい。

お問い合わせ番号をお伝えください
RHS-980950440

内見予約
お問合せ

お問い合わせ

お問い合わせ内容
お問合せ内容必須
【備考欄】
詳細な見学ご希望時間、ご質問、ご希望条件などがございましたらお聞かせ下さい。
(2000文字以内)
お客様情報
お名前必須
連絡先必須 メールアドレス

※ご記入いただいたメールアドレス宛てに、お問合せ内容の確認メールをお送りいたします。
※Yahoo!メールなどのフリーメールをご利用の場合、迷惑メールフォルダに入る場合があります。
 迷惑メールのフォルダ・設定等をご確認下さい。
電話番号
FAX(任意)
※ご入力いただいたお客さまの個人情報は、「個人情報の取扱いについて」に基づき適正に取り扱います。必ずお読みになり、同意の上お問い合わせください。

お気軽にお問い合わせください

0120-008-442
物件番号 RHS-980950440
※「ホームページを見た」
とお伝え下さい。